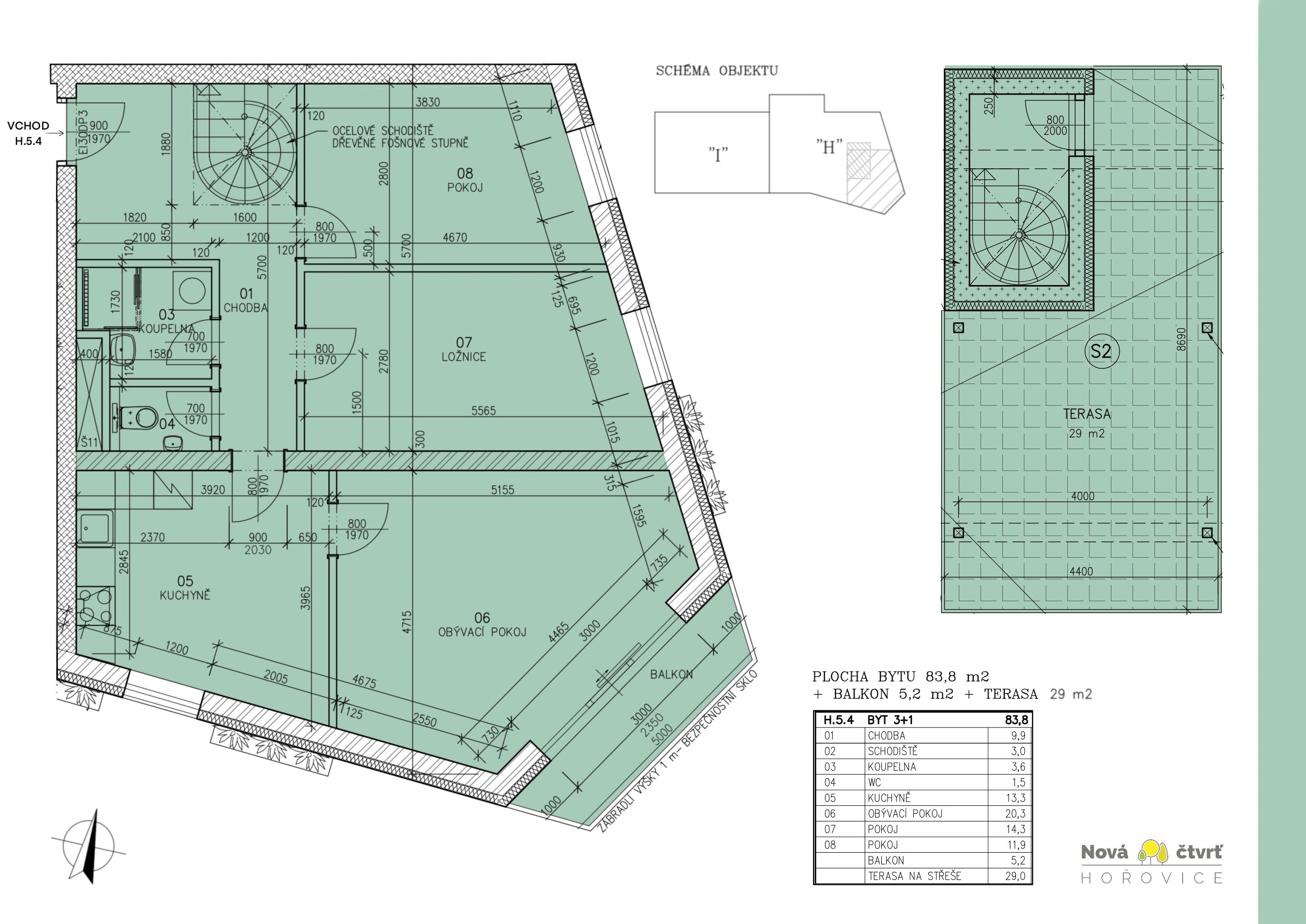
Prodej bytu 3+1, 94 m²
K bytu je v ceně sklepní kóje a 2 parkovací stání. Uvedená cena zahrnuje variantu bytu v základním provedení (co je součástí základního provedení najdete na webových stránkách v sekci Standardy), cena dále zahrnuje podlahové topení a přípravu na venkovní žaluzie. Budoucí majitel si může vybrat zařizovací předměty, podlahy, dveře, obklady a dlažby dle svého vkusu.
- Bytová jednotka
- H.5.4
- Dispozice
- 3+1
- Podlahová plocha
- 94 m²
- Podlaží
- 5.NP
- Sklepní kóje
- 1
- Parkovací stání
- 2
- Etapa výstavby
- U Hofmannů
- Stav
- Volný
Plán bytu
